Oostdaallaan 22
2241 XC, WASSENAAR

Oostdaallaan 22

VERKOCHT

Icoon huisje
Eengezinswoning

Icoon huisje
143 m2

Icoon huisje
6 kamers

Omschrijving

Goed onderhouden tussenherenhuis met voortuin, fraai aangelegde zonnige achtertuin met stenen schuur en achterom! Heerlijk vrij uitzicht aan de achterzijde over het water en groen!

Gelegen op een ideale, groene en zeer kindvriendelijke locatie (Weteringpark IV) met diverse speeltuintjes, een waterpartij, alleen bestemmingsverkeer en brede straten.

Vlakbij de kinderboerderij, op fietsafstand van het strand en de duinen, maar ook nabij de "American School of The Hague" en het Adelbert College.

Weteringpark IV staat bekend om zijn ruime opzet, veel groen, waterpartijen, een kinderboerderij en veilige speelplekken, kortom een perfecte leefomgeving voor jonge gezinnen!

Winkels, scholen, sportclubs zijn eenvoudig bereikbaar, maar ook Den Haag, Leiden en internationale organisaties liggen op korte afstand.

Kortom: een perfect gelegen en instapklare gezinswoning, ideaal voor (expat)gezinnen die comfortabel en zorgeloos willen wonen in het mooie Wassenaar!

Indeling:
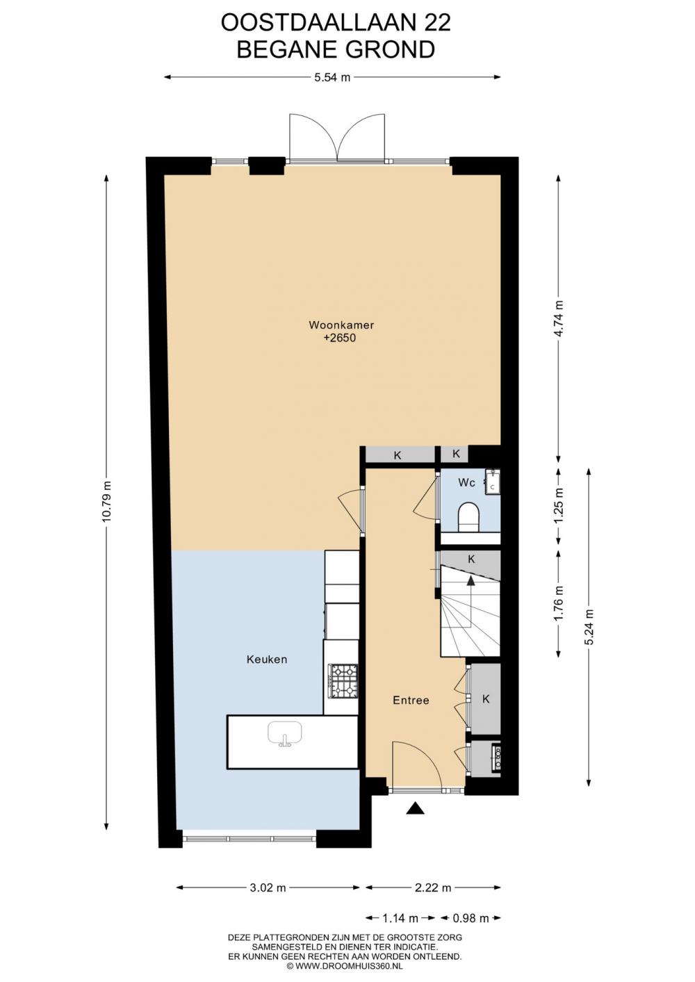
Voortuin. Entree woning. Lichte en brede hal met op maat gemaakte garderobekasten, bergruimte onder de trap en een luxe toilet. Royale woon-/eetkamer (over de volle breedte van het huis) voorzien van een prachtige eiken houtenvloer en openslaande deuren naar de diepe en zonnige achtertuin op het zuidoosten met een stenen schuur en een achterom langs de waterpartij. Aan de voorzijde de luxe open keuken met eikenhouten werkblad en voorzien van diverse apparatuur o.a. stoomoven (Gaggenau), koelkast, vrieskast, vaatwasmachine, Quooker kraan, 5 pits gasfornuis, RVS afzuigkap en een spoel/eiland met bar en verrassend veel kastruimte.

Eerste verdieping:
Overloop met separaat toilet. Ruime ouderslaapkamer aan de achterzijde met doorloop naar zijkamer welke is voorzien van een prachtige op maat gemaakte walk-in closet. Tussengelegen moderne badkamer voorzien van ligbad, stoomcabine met douche, dubbele wastafel en handdoekradiator.
Aan de voorzijde een heerlijke slaapkamer over de volle breedte.

Tweede verdieping:
Royale zolder-/studeer-/hobbykamer met veel bergruimte onder de knieschotten en een dakkapel. Slaapkamer aan de achterzijde tevens met dakkapel en bergruimte onder de knieschotten. Separate was/droogruimte en de opstelplaats van de CV-ketel.

Algemeen:
Woonoppervlakte 143m²
Inhoud 495m³
Bouwjaar 2006
CV installatie Intergas HR
Zonnepanelen aanwezig 8 stuks
Elektrische zonwering aan de achterzijde
Diverse horren en sunscreens bij de slaapkamers
Notariskeuze verkoper, Boom Notariaat Voorschoten
Eigen grond
Oplevering in overleg, kan spoedig

Toelichtingsclausule NEN2580
De Meetinstructie is gebaseerd op de NEN2580. De Meetinstructie is bedoeld om een meer eenduidige manier van meten toe te passen voor het geven van een indicatie van de gebruiksoppervlakte. De Meetinstructie sluit verschillen in meetuitkomsten niet volledig uit, door bijvoorbeeld interpretatieverschillen, afrondingen of beperkingen bij het uitvoeren van de meting.

Interesse in dit huis? Schakel direct uw eigen NVM-aankoopmakelaar in. Uw NVM-aankoopmakelaar komt op voor uw belang en bespaart u tijd, geld en zorgen.
Adressen van collega NVM-aankoopmakelaars in Haaglanden vindt u op Funda.nl

Deze informatie is door ons met de nodige zorgvuldigheid samengesteld. Onzerzijds wordt echter geen enkele aansprakelijkheid aanvaard voor enige onvolledigheid, onjuistheid of anderszins, dan wel de gevolgen daarvan.

Kenmerken


Aanvaarding

Prijs € 799.000 k.k.
StatusVerkocht
AanvaardingIn overleg

Bouw

Soort woonhuisEengezinswoning, Tussenwoning
Soort bouwBestaande bouw
Bouwjaar2006
Onderhoud binnenGoed
Onderhoud buitenGoed

Oppervlakten en inhoud

Woonoppervlakte143m2
Perceeloppervlakte167m2
Inhoud495m3

Indeling

Aantal kamers6
Aantal verdiepingen3
VoorzieningenMechanische ventilatie, Rolluiken, TV-Kabel, Buitenzonwering, Glasvezel kabel, Zonnepanelen

Energie

EnergielabelA
IsolatieVolledig geisoleerd
Warm waterC.V.-ketel
VerwarmingC.V.-ketel
KetelIntergas HR (2006, Combi-ketel, Eigendom)

Buitenruimte

LiggingAan rustige weg, In woonwijk, Vrij uitzicht
SchuurVrijstaand steen

Locatie